Diese ansprechende, moderne Gartenwohnung mit eigenem zum Süden ausgerichteten Garten, direkt an der Spree in neuer, grüner Wohnanlage (Erstbezug 2018) mit 93 Wohnungen in ruhiger Lage und verfügt über eine gehobene Innenausstattung mit zwei attraktiven, lichtdurchfluteten Zimmern mit Wasserblick!
Das Apartment ist barrierefrei und bequem über einen Fahrstuhl, Treppe oder direkt durch den eigenen Garten zu erreichen.
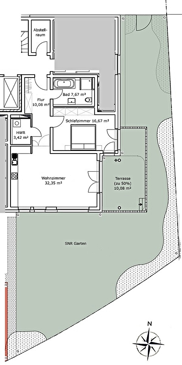
Besonders hervorzuheben ist der ganztägig beschienene Sonnen-Garten mit Blick auf die Spree aus allen Zimmern.
Zur Wohnung gehören ein trockener Kellerraum und ein Tiefgaragen-Stellplatz mit ausreichend Platz fürs Ein- und Ausparken.
In der Wohnanlage befinden sich Fahrradabstellplätze und ein Fahrradräume.
Ausstattung
Große Einbauküche von Nolte, Fußbodenheizung, Vollbad mit Wanne und Dusche, Eichenparkett, große Kleiderschränke im Flur und im Schlafzimmer, Hauswirtschaftsraum, Keller und Tiefgaragen-Stellplatz.
Lage
Die Wohnung liegt in einer der besonderen Wasserlagen Charlottenburgs: auf der Mierendorff-Insel, umgeben von Spree und Landwehrkanal, direkt am begrünten Spreeufer. Die Promenaden und Uferwege beginnen praktisch vor der Tür und führen durch viel Grün bis zum Charlottenburger Schloss mit seinem weitläufigen Schlossgarten sowie weiter Richtung Tiergarten.
Die Wohnanlage selbst bietet mit einem ruhigen, autofreien Innenhof ein spürbares Plus an Privatsphäre und Aufenthaltsqualität. Gleichzeitig ist die Anbindung ausgezeichnet: Mehrere Buslinien und die U-Bahnlinie U7 sind schnell erreichbar, ergänzt durch komfortable Radwege entlang von Spree und Charlottenburger Verbindungskanal.
Garten: ja, als SNR
Bad: mit Wanne und Dusche
EBK: ja
Möbel: inkl.
Barrierefrei: ja
Fußbodenheizung: ja
Fernheizung: ja
Hauswirtschaftsraum: ja, mit WM-Stellplatz
Hausgeld Wohnung: 312,16 € warm
TG-Stellplatz: 24,84 €
Bezugsfrei: sofort
Kaufpreis: 699.000 €
TG-Stellplatz Nr. 104: 40.000 €


