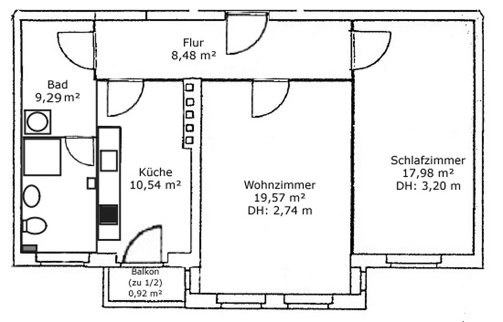
Deckenhöhen: ca. 2,74-3,2 m
Fenster: Doppelverglaste moderne Iso-Holz- und Kunststofffenster
Boden: Laminat auf wahrscheinlich alten Dielen
Stuck: ja, im Schlafzimmer
Balkon: ja
Wände: Raufasertapete
Bad: modernisiert, mit Fenster, Dusche und Hänge-WC
Abstellraum: ja
Keller: ja
Heizung: Fernwärme
Zustand: gepflegt
Das Haus befindet sich nur wenige hundert Meter vom wunderschönen Körnerpark entfernt und in unmittelbarer Nähe zum charmanten und angesagten Richardplatz.
Der Richardplatz ist einer der angesagten Plätze in Neukölln mit Restaurants, kleinen Geschäften für den täglichen Bedarf, Baumbestand und schönen Bauwerken. Schulen, Kitas und Dienstleistungen aller Art befinden sich in unmittelbarer Nähe. Für die Naherholung ist der Comeniusgarten in der Richardstraße ein Geheimtipp.
Die Karl-Marx-Straße mit ihren zahlreichen Geschäften für den täglichen Bedarf ist gleich um die Ecke. S-Bahnhof Sonnenallee sowie der U7- und S-Bahnhof Neukölln, wodurch das Haus sehr gut an den öffentlichen Nahverkehr angeschlossen ist.
Über die naheliegende Stadtautobahn sind der Flughafen BER, sowie alle Berliner Stadtteile schnell erreichbar.


