Erneuerung der Fahrstühle: ca.: 2026 (auf Kosten des Verkäufers, keine Umlagen)
Aufstockung und neues Dach: ca.: 2026 (auf Kosten des Verkäufers, keine Umlagen)
Fassaden und Treppenhaussanierung: ca.: 2026 (auf Kosten des Verkäufers, keine Umlagen)
Fernwärme: ca.: 2026 (auf Kosten des Verkäufers, keine Umlagen)
Wärmedämmung: ca.: 2026 (Sonderumlage, max. 100 €/m²)
Etage: 5.OG
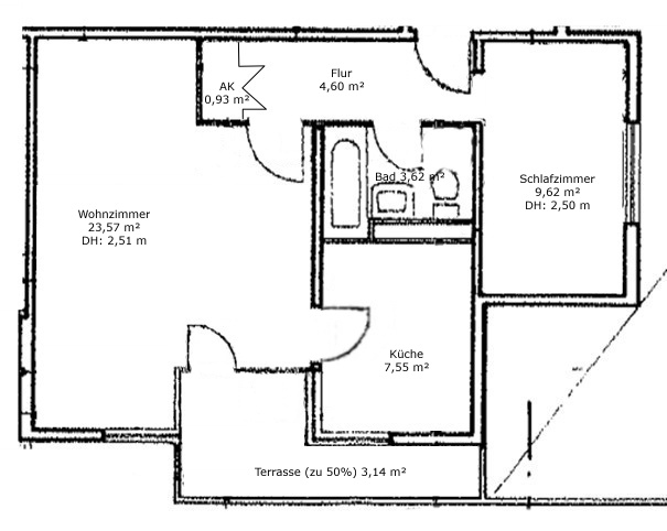
Wohnfläche ca.: 52,67 m² (gem. TE)
Wohnfläche ca.: 53,02 m² (gem. Aufmaß vor der Erweiterung)
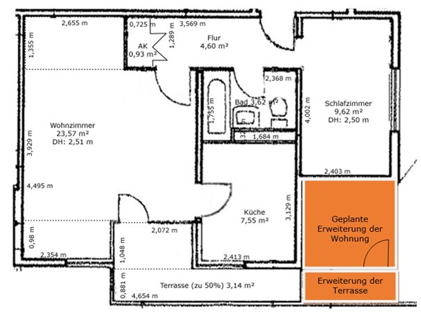
Wohnfläche ca.: 58,43 m² nach der Erweiterung
Zimmer: 2 + Küche
Fahrstuhl: ja
Terrasse: ja, zum Westen
Fenster: Holz-Iso-verglast
Deckenhöhe ca.: 2,50 m
Heizung: Öl-Zentralheizung BJ: 2005, ab 2026 Fernwärme
Keller: ja
Vermietet seit: 16.04.2008
Bezugsfrei spätestens bis: 01.07.2026
Kaltmiete: 524,15 €
BK-VZ: 150,00 €
HK-VZ: 78,00 €
Warmmiete: 752,15 €
Bezugsfrei spätestens bis: 01.07.2026 !
Diese freiwerdende 2-Zimmer-Wohnung mit einer Loggia überzeugt durch ihre praktische Raumaufteilung. Die windgeschützten und zum Westen orientierte Loggia und die gut geschmacksvoll renovierten Räumlichkeiten machen diese Wohnung zu einem attraktiven Angebot für Familien und Paare, die auf der Suche nach einer komfortablen und gut geschnittenen Wohnung sind.
Außerdem, im Zuge des Penthouse-Ausbaus wird die Wohnung, bzw. das Schlafzimmer erweitert.
Diese Wohnung befindet sich in einem der begehrtesten Stadtteile Berlins, weniger als 300 m vom Kurfürstendamm! Diese erstklassige Lage bietet eine perfekte Kombination aus urbanem Leben und grüner Umgebung. Charlottenburg ist ein traditionsreicher Stadtteil Berlins, der für seine elegante Architektur und seine historische Bedeutung bekannt ist. Die Nähe zum Schloss Charlottenburg, einem der bedeutendsten Barockschlösser Deutschlands, verleiht der Gegend einen besonderen Charme.
Verkehrsanbindung: Das Haus ist hervorragend an das öffentliche Verkehrsnetz angeschlossen. Der S-Bahnhof Charlottenburg sowie der U-Bahnhof Wilmersdorfer Straße (U7) sind nur wenige Gehminuten entfernt und bieten schnelle Verbindungen in alle Teile der Stadt. Zusätzlich befinden sich mehrere Buslinien in unmittelbarer Nähe, die eine flexible Mobilität ermöglichen. Auch für den Individualverkehr ist die Lage ideal: Die Stadtautobahn A100 ist in wenigen Minuten erreichbar, was eine schnelle Anbindung sowohl an das Berliner Stadtzentrum als auch an das Umland gewährleistet.
Einkaufsmöglichkeiten: Dase Haus steht nur wenige Schritte vom Kurfürstendamm und von der Wilmersdorfer Straße entfernt, der beliebtesten Einkaufsstraßen Berlins. Hier finden sich zahlreiche Geschäfte, Supermärkte und Boutiquen für den täglichen Bedarf sowie für ausgiebige Shopping-Touren. Das nahegelegene Einkaufszentrum „Wilmersdorfer Arcaden“ bietet darüber hinaus eine Vielzahl an weiteren Einkaufsmöglichkeiten.
Freizeit und Erholung: In der näheren Umgebung befinden sich mehrere Grünflächen und Parks, wie der Lietzenseepark, die zu Spaziergängen und Entspannung im Freien einladen. Die Gegend um den Kurfürstendamm, eine der bekanntesten Flaniermeilen Berlins, bietet zudem ein breites Angebot an Cafés, Restaurants und Kultureinrichtungen, darunter Kinos und Theater. Für Sportbegeisterte gibt es in der Umgebung diverse Fitnessstudios und Sporteinrichtungen.
Bildung und Gesundheit: Die Nachbarschaft verfügt über eine ausgezeichnete Bildungsinfrastruktur mit einer Vielzahl an Kitas, Grundschulen und weiterführenden Schulen. In direkter Umgebung gibt es zudem mehrere Arztpraxen und Apotheken, während größere medizinische Einrichtungen wie das DRK Klinikum Westend gut erreichbar sind.


