Diese charmante Wohnung befindet sich im Hochparterre eines gepflegten Mehrfamilienhauses in Schöneberg, Berlin. Die Wohnung überzeugt durch ihren effizienten Grundriss, eine hochwertige Ausstattung und die attraktive Südausrichtung des Wohnbereichs.
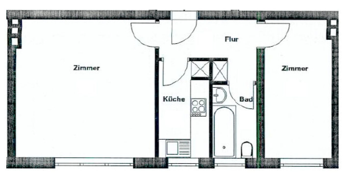
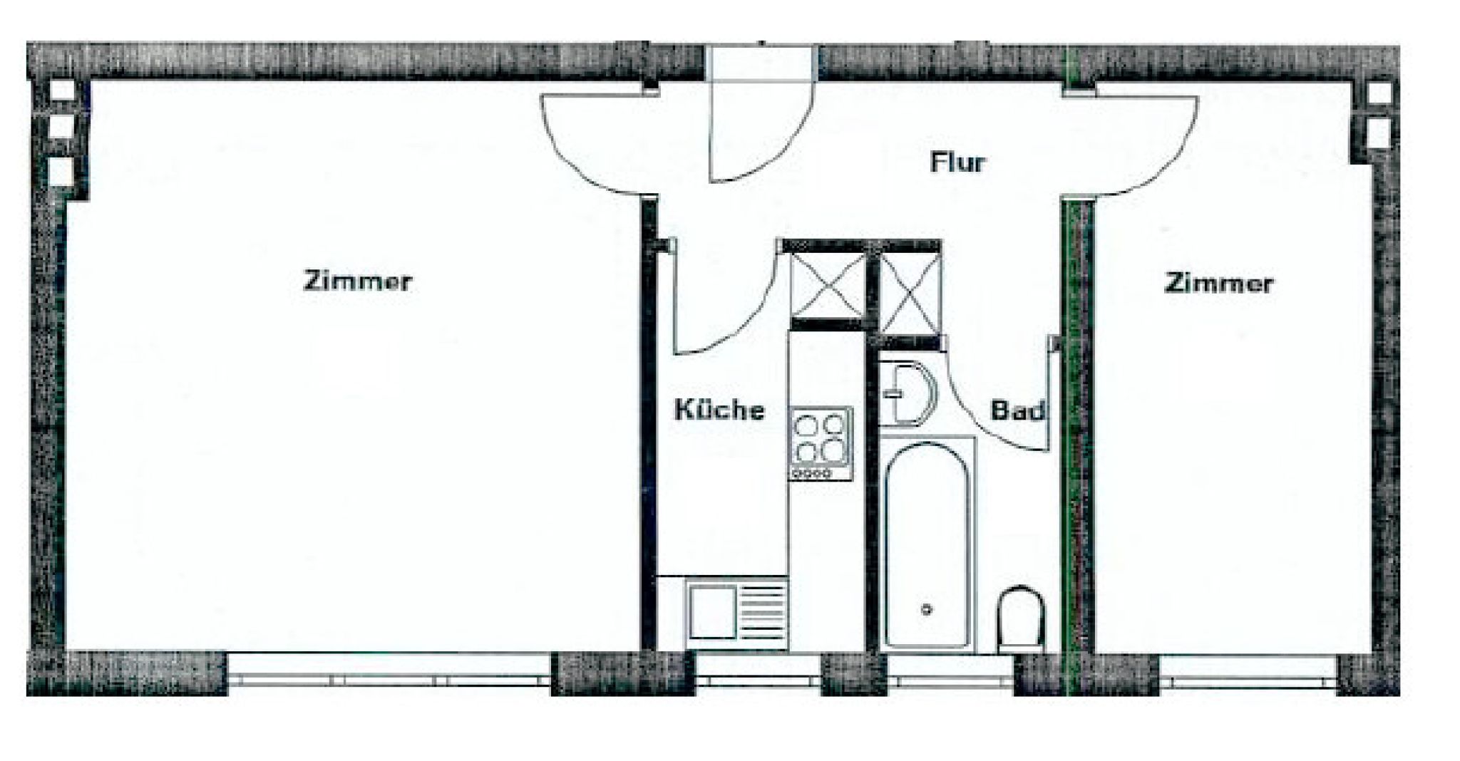
Die 2-Zimmer-Wohnung besteht aus:
– Einem Wohnzimmer mit ausreichend Platz für eine gemütliche Sofaecke und einem kleinen Essbereich
– Einem Schlafzimmer mit Ausrichtung zum Innenhof
– Einer separaten Küche mit moderner Einbauküche
– Einem tagesbelichteten Wannenbad
Die Ausstattung
– Echtholz-Eichenparkett in den Wohnräumen
– Spachtelglatte Wände für ein modernes Erscheinungsbild
– Erneuerte Elektrik für zeitgemäßen Wohnkomfort
Die Lage
Die Wohnung liegt im Herzen Schönebergs, an der Schnittstelle von drei spannenden Kiezen:
– Winterfeldtkiez mit kleinen Lädchen, Cafés und Restaurants
– Akazienkiez mit quirligen Straßen und Geschäften
– Bayerisches Viertel mit wunderschönen Altbauten und zahlreichen Buchläden
Verkehrsanbindung
– U-Bahnhof Bayerischer Platz in 4 Minuten Fußweg
– U-Bahnhof Eisenacher Straße in 5 Minuten Fußweg
– Autobahnanschluss A 100 in ca. 4 Minuten Fahrzeit
– Fernbahnhof Südkreuz in 6 Fahrminuten
Fazit
Diese kompakte 2-Zimmer-Wohnung mit Balkon ist ideal für alle, die urbanes Wohnen mit durchdachter Funktionalität verbinden möchten. Die Wohnung wurde 2019 saniert und präsentiert sich in einem gepflegten Zustand. Jetzt Besichtigung vereinbaren und selbst überzeugen!


