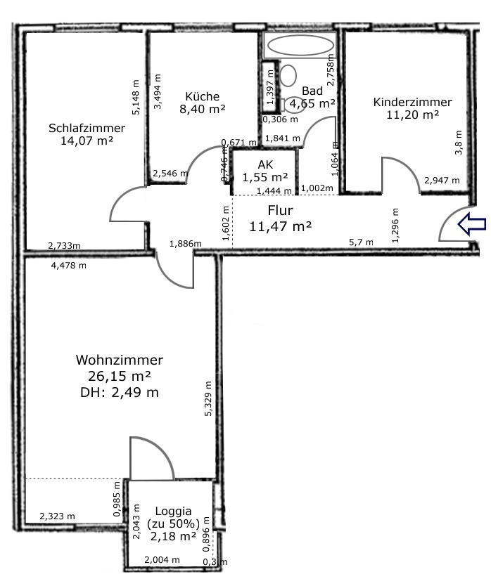
Diese freie 3-Zimmer-Wohnung mit West-Loggia überzeugt durch ihre praktische Raumaufteilung. Die windgeschützte und zum Westen orientierte Loggia und die gut geschnittenen Räumlichkeiten machen diese Wohnung zu einem attraktiven Angebot für Familien und Paare, die auf der Suche nach einer komfortablen und gut geschnittenen Wohnung sind.
Baujahr: 1978
Erneuerung der Fahrstühle: ca.: 2026/2027 (auf Kosten des Verkäufers, keine Umlagen)
Aufstockung und neues Dach: ca.: 2026/2027 (auf Kosten des Verkäufers, keine Umlagen)
Fassaden und Treppenhaussanierung: ca.: 2026/2027 (auf Kosten des Verkäufers, keine Umlagen)
Fernwärme: 2026 (auf Kosten des Verkäufers, keine Umlagen)
Wärmedämmung: ca.: 2026/2027 (Sonderumlage, max. 100 €/m²)
Zimmer: 3 + Küche
Fahrstuhl: ja
Loggia: ja, zum Westen
Fenster: Holz-Iso-verglast
Deckenhöhe ca.: 2,50 m
Boden: Laminat und Teppich auf dem Originalfußboden
Heizung: Öl-Zentralheizung BJ: 2005, ab 2026 Fernwärme


