Baujahr: 1884
Sanierungen: 2021 Hinterhausfassade
2022 Neue Wasser- und Abwasserleitungen
DG-Ausbau voraussichtlich 2027
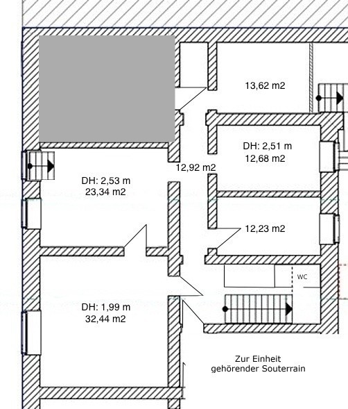
Etage: Hochparterre und Souterrain im Vorderhaus
Große Schaufenster: ja
Gesamt-Nutzfläche ca.: 144,26 m2
davon: Hochparterre: 35,66 m2
Souterrain: 108,96 m2
Zimmeranzahl: 6. Davon 1 Zimmer im Hochparterre und 5 im Souterrain
Mögliche Nutzungen: Büro, Laden, Galerie, Studio. Keine Gastronomie
Boden: Linoleum
WC: 1
Küche: nein, aber Anschluss für die offene Teeküche ist möglich
Deckenhöhen: Im Hochparterre: 3,67 m. Im Souterrain: 2-2,5 m
Fenster: Originalholzfenster
Heizung: Gas-Etagenheizung
Die Umgebung ist geprägt von einer geschlossenen Bauweise, vorwiegend bestehend aus Altbaubestand aus der Jahrhundertwende.
Die Nahgebietsversorgung (u.a. Einkaufsmöglichkeiten, Schulen, Kindergärten, Krankenhäuser und sonstige infrastrukturelle Einrichtungen) ist durch die städtische Lage gesichert. Besonders hervorzuheben sind hierbei die umfangreichen Versorgungseinrichtungen entlang der ca. 100m entfernten Straße Alt-Moabit sowie in der ca. 300m entfernten Turmstraße mit ihrem umfangreichen Einkaufsangebot sowie diversen gastronomischen Einrichtungen.
Nächstgelegene Erholungsflächen sind der „Kleinen Tiergarten“ in ca. 300m, der Carl-von-Ossietzky-Park in ca. 350m sowie der „Große Tiergarten“ in ca. 1.000m Entfernung. Die Spree ist nach ca. 250 m zu erreichen.
Zudem verfügen die umliegenden Straßen über einen teils intensiven Altbaumbestand, der
maßgeblich die Charakteristik des Gebiets prägt. Die Anbindung an den öffentlichen Nahverkehr stellt sich wie folgt dar: Bus Alt-Moabit ca. 100 m; U-Bahnhof Turmstraße ca. 850 m; S-Bahnhof Bellevue ca. 250 m.


