Etage: 4.OG (Neubauteil)
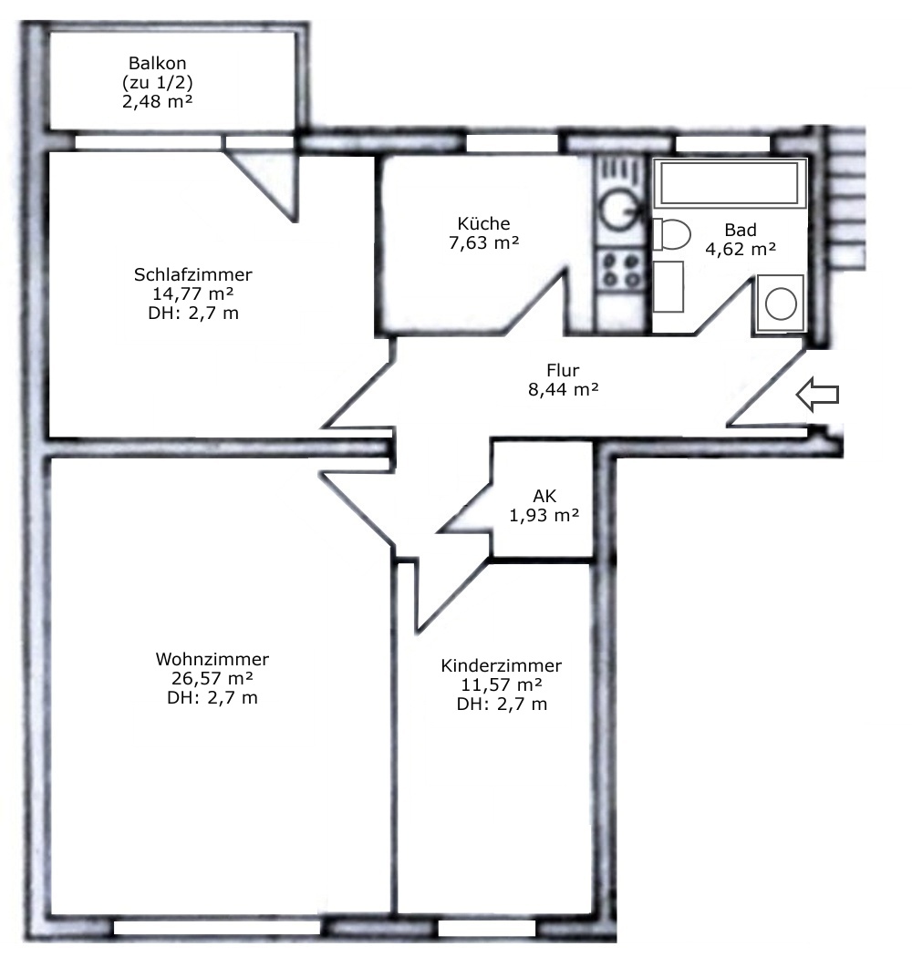
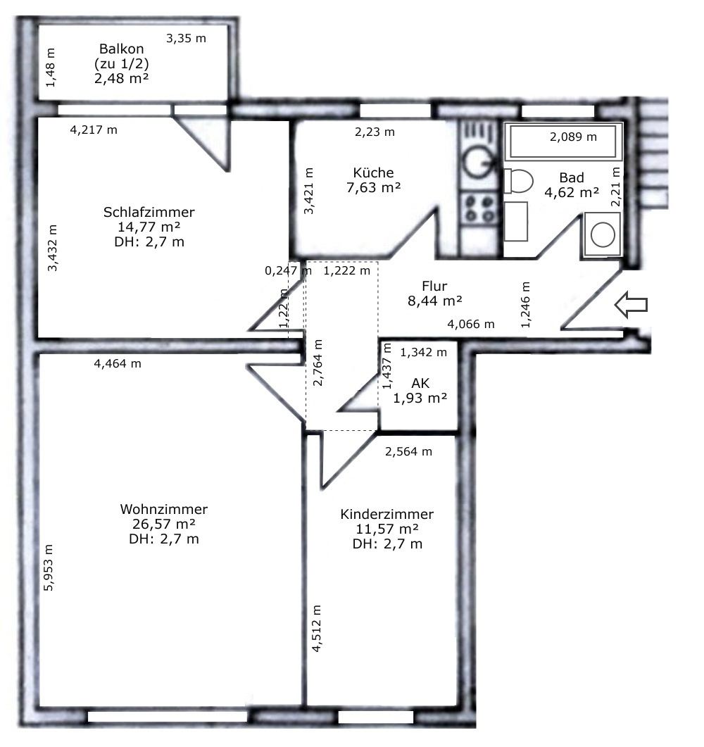
Wohnfläche ca.: 78,01 m2
Zimmeranzahl: 3
Aufzug: ja
Keller: ja
Balkon: ja, nach Westen (2.Balkon ist möglich)
Bad: mit Wanne und Fenster
Boden: Laminat
Wände: Raufasertapete
Deckenhöhe ca.: 2,7 m
Fenster: Holzverbundfenster
Abstellkammer: ja
Heizung: Fernwärme
Warmwasser: Durchlauferhitzer
Zustand: renovierungsbedürftig
Objektbeschreibung:
Der Verkäufer hatte einen Fond i.H.v. ca. 400.000 € gebildet, um die Außen- und Hoffassaden, das Treppenhaus und den Fahrstuhl zu erneuern, sowie die Fenster außen neu zu lackieren. Der Auftrag ist bereits durch eine zuverlässige Berliner Baufirma erledigt.
Es ist angedacht einen zweiten Balkon (am Wohnzimmer) anzubauen. Der Bauantrag wurde bereits genehmigt. Da der Balkon noch nicht angebaut ist, ist er auch nicht im Preis enthalten. Nach dem Kauf, wenn der Balkon angebaut ist, wird er 1:1 umgelegt.
Lage:
Die Umgebung ist geprägt von einer geschlossenen Bauweise, vorwiegend bestehend aus Altbaubestand aus der Jahrhundertwende.
Die Nahgebietsversorgung (u.a. Einkaufsmöglichkeiten, Schulen, Kindergärten, Krankenhäuser und sonstige infrastrukturelle Einrichtungen) ist durch die städtische Lage gesichert. Besonders hervorzuheben sind hierbei die umfangreichen Versorgungseinrichtungen entlang der ca. 100m entfernten Straße Alt-Moabit sowie in der ca. 300m entfernten Turmstraße mit ihrem umfangreichen Einkaufsangebot sowie diversen gastronomischen Einrichtungen.
Nächstgelegene Erholungsflächen sind der „Kleinen Tiergarten“ in ca. 300m, der Carl-von-Ossietzky-Park in ca. 350m sowie der „Große Tiergarten“ in ca. 1.000m Entfernung. Die Spree ist nach ca. 250 m zu erreichen.
Zudem verfügen die umliegenden Straßen über einen teils intensiven Altbaumbestand, der
maßgeblich die Charakteristik des Gebiets prägt. Die Anbindung an den öffentlichen Nahverkehr stellt sich wie folgt dar:
Bus Alt-Moabit ca. 100 m, U-Bahnhof Turmstraße ca. 850 m, S-Bahnhof Bellevue ca. 250 m.


